Criamos com visão.
Construímos com rigor.

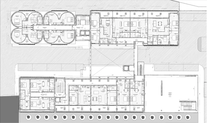
Arquitetura, engenharia e construção com precisão técnica e excelência de execução.

Equipa da Empower4Good reunida no escritório em Braga

Quem somos

A Empower4Good existe para transformar complexidade em clareza.
Trabalhamos com organizações que valorizam visão estratégica, rigor e impacto duradouro.

Combinamos a experiência com uma abordagem integrada de gestão de projetos, onde a tecnologia é usada com intenção e critério, sempre a serviço da qualidade, da visão do cliente e dos resultados.

Cada projeto é tratado como único. Escutamos, analisamos e acompanhamos cada decisão com atenção ao detalhe, transparência e um compromisso inegociável com a excelência.

Para nós, sucesso não é apenas concluir um projeto, mas criar valor real e sustentável para quem confia no nosso trabalho.

Construir melhor é um ato de responsabilidade. É assim que atuamos.

Serviços

Todos os serviços são executados em BIM, para maior precisão, controlo e eficiência.

Construção, gestão e fiscalização de obra

Serviços especializados em construção de obras públicas e privadas.

Arquitetura e design

Projeto de arquitetura, inclui estudo prévio (EP), licenciamento e execução.

Engenharia e construção

Projetos de especialidades (licenciamento e execução), coordenação de projetos e análise de viabilidade.

Especialidades

Ícone de Reabilitação

Reabilitação de Edifícios

Intervenções estruturais e funcionais em edifícios existentes, melhorando segurança, conforto e eficiência, respeitando a identidade original.

Ícone de Terraplanagem

Terraplanagem

Preparação rigorosa do terreno através de escavação, nivelamento e compactação, garantindo uma base sólida para a construção.

Ícone de Estruturas de Betão

Estruturas de Betão Armado

Execução de estruturas resistentes e duráveis, assegurando estabilidade, segurança e conformidade com as normas técnicas.

Ícone de Estruturas Metálicas

Estruturas Metálicas

Projeto e montagem de estruturas de aço robustas, ideais para grandes vãos, edifícios industriais e soluções arquitetónicas modernas.

Ícone de Serralharia

Serralharia de Alumínio

Fabrico e instalação de caixilharias e elementos metálicos em alumínio, com foco na durabilidade, estética e eficiência térmica.

Ícone de Carpintaria

Carpintaria e Marcenaria

Soluções à medida em madeira, desde estruturas a acabamentos, combinando funcionalidade, precisão e qualidade artesanal.

Ícone de Drywall

Gesso Cartonado

Execução de divisórias, tetos falsos e soluções de isolamento interior, com rapidez de execução e acabamento limpo.

Ícone de Alvenaria

Alvenaria

Construção de paredes e elementos estruturais ou de vedação, utilizando materiais cerâmicos ou betão, com elevado rigor técnico.

Ícone de Pintura

Pintura

Aplicação de sistemas de pintura interior e exterior, garantindo proteção das superfícies e um acabamento uniforme e duradouro.

Ícone de Acabamentos

Acabamentos Cerâmicos

Assentamento de revestimentos cerâmicos em paredes e pavimentos, com precisão, alinhamento e qualidade estética.

Ícone de Pedra Natural

Acabamentos em Pedra Natural

Aplicação de pedra natural em interiores e exteriores, valorizando o espaço com materiais nobres e resistentes.

Ícone de Exteriores

Arranjos Exteriores

Execução de espaços exteriores funcionais e harmoniosos, incluindo pavimentações, muros e enquadramento paisagístico.

Ícone Diversos

Diversos

Outros trabalhos complementares de construção e acabamento, ajustados às necessidades específicas de cada projeto.

Ícone de Eletricidade

Eletricidade e ITED

Instalação de redes elétricas e telecomunicações, assegurando segurança, fiabilidade e conformidade legal.

Ícone de Domótica

Domótica

Integração de sistemas inteligentes para controlo de iluminação, climatização, segurança e eficiência energética.

Ícone de Robótica

Robótica Industrial

Implementação de soluções técnicas para automação e otimização de processos industriais.

Ícone de Hidráulica

Redes Hidráulicas

Execução de sistemas de abastecimento de água, drenagem e esgotos, com foco na durabilidade e desempenho.

Ícone de Ar Comprimido

Ar Comprimido

Instalação de redes de ar comprimido para uso industrial, garantindo eficiência e segurança operacional.

Ícone de Outros Acabamentos

Outros Acabamentos

Execução de acabamentos técnicos e especiais, adaptados às exigências funcionais e estéticas do projeto.

BIM, Revit e a nossa vantagem

Ao integrar todas as disciplinas num único modelo digital, desde a arquitetura às engenharias, prevenimos erros, eliminamos custos, imprevistos e garantimos o cumprimento de prazos.

O resultado é uma obra rigorosa, eficiente e sem surpresas para o cliente.

Screenshot do software Revit e BIM em uso

O Revit está a tornar-se obrigatório, consulta o Decreto-Lei 10/2024 para mais detalhes. https://diariodarepublica.pt/dr/detalhe/decreto-lei/10-2024-836222484

Projetos

Portfólio em atualização., contacta-nos para receber os casos de estudo completos.

AV | Marco de Canaveses

Moradia Unifamiliar

FJ | Freamunde

Moradia Unifamiliar

BM | Cascais

Moradia Unifamiliar

PP | VILA MOURA

Projeto Home Cinema

Valongo

Edifício Habitacional

OS | Póvoa de Lanhoso

Moradia Unifamiliar

Se já tiver um terreno, a Empower4Good trata de todas as fases do projeto, do estudo de viabilidade à execução e coordenação da obra.

Missão

Comprometemo-nos a superar as expectativas, elevando os padrões de qualidade em cada projeto que entregamos, através de soluções de engenharia e arquitetura que aliam inovação, rigor técnico e sustentabilidade.

Valor

Acreditamos que cada projeto merece uma abordagem única e personalizada. Combinamos a experiência técnica, inovação e compromisso inabalável que superam as expectativas dos nossos clientes.

Arquiteto a desenhar plantas de arquitetura sobre secretária
Engenheiro civil a analisar plantas de obra no terreno
Equipa da Empower4Good a trabalhar em computadores no escritório

Processo

Acompanhamos tudo, desde o projeto, coordenação BIM, até à entrega e pós-venda, porque a obra só termina quando o cliente está satisfeito.

Briefing e diagnóstico

Briefing e diagnóstico

Projeto arquitetura

Projeto arquitetura em metodologia BIM

Coordenação BIM

Coordenação e compatibilização de especialidades

Execução

Execução da obra

Entrega e pós-venda

Entrega e pós-venda